0

"Lotissement au calme à Talmont-Saint-Hilaire, terrains viabilisés et libres de constructeur pour concrétiser

Talmont-Saint-Hilaire (85440)
Réf : 1274

Votre agence La Mothe Immobilier vous propose ce lotissement idéalement situé à Talmont-Saint-Hilaire, à proximité immédiate du bourg et dans un environnement calme et résidentiel, parfait pour concrétiser votre projet immobilier

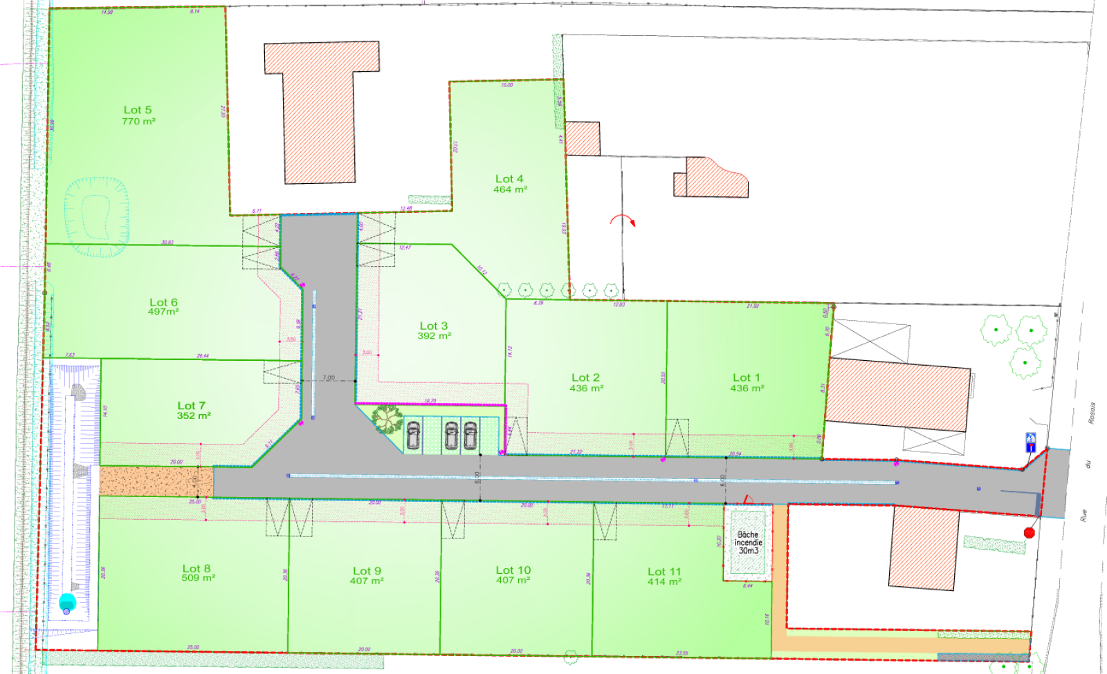
Le lotissement se compose de 11 parcelles de terrains à bâtir, allant de 352 m² à 770 m², toutes entièrement viabilisées et libres de constructeur, vous offrant ainsi la possibilité de construire la maison de vos rêves selon vos envies et vos besoins

Chaque parcelle bénéficie d’un cadre agréable, d’une exposition optimale et d’une accessibilité facile aux commerces, écoles et services, alliant tranquillité et praticité. Que vous souhaitiez un petit jardin cosy ou un espace extérieur généreux pour profiter pleinement de la vie en famille, ce lotissement saura répondre à toutes vos attentes

C’est une opportunité rare de devenir propriétaire d’un terrain dans un secteur recherché, en toute sérénité, avec la liberté de choisir votre constructeur et de personnaliser votre futur logement à votre image

En choisissant notre agence, vous faites le choix d’un accompagnement sur mesure, alliant expertise locale, conseils personnalisés et suivi complet pour une expérience immobilière sereine, humaine et efficace. Votre satisfaction est notre priorité. Les informations sur les risques auxquels ce bien est exposé sont disponibles sur : www.georisques.gouv.fr

Prix du bien 100 000 €

Caractéristiques du bien

Caractéristiques Valeurs
Code postal 85440
surface terrain 407 m²
Terrain constructible OUI
Surface constructible 407
Exposition Sud-Ouest
Terrain Viabilisé OUI

Infos financières

Caractéristiques Valeurs
Prix de vente 100 000 €
Les honoraires d'agence seront intĂ©gralement Ă  la charge du vendeur  
Ce bien vous intéresse ?
Fieldset par défaut
Fieldset par défaut
Validation

* Champs obligatoires

Contacter l'agence
Validation
Les informations recueillies sur ce formulaire sont enregistrées dans un fichier informatisé par La Boite Immo agissant comme Sous-traitant du traitement pour la gestion de la clientèle/prospects de l'Agence / du Réseau qui reste Responsable du Traitement de vos Données personnelles. La base légale du traitement repose sur l'intérêt légitime de l'Agence / du Réseau. Elles sont conservées jusqu'à demande de suppression et sont destinées à l'Agence / au Réseau. Conformément à la loi « informatique et libertés », vous disposez des droits d’accès, de rectification, d’effacement, d’opposition, de limitation et de portabilité de vos données. Vous pouvez retirer votre consentement à tout moment en contactant directement l’Agence / Le Réseau. Consultez le site https://cnil.fr/fr pour plus d’informations sur vos droits. Si vous estimez, après avoir contacté l'Agence / le Réseau, que vos droits « Informatique et Libertés » ne sont pas respectés, vous pouvez adresser une réclamation à la CNIL. Nous vous informons de l’existence de la liste d'opposition au démarchage téléphonique « Bloctel », sur laquelle vous pouvez vous inscrire ici : https://www.bloctel.gouv.fr Dans le cadre de la protection des Données personnelles, nous vous invitons à ne pas inscrire de Données sensibles dans le champ de saisie libre.
Ce site est protégé par reCAPTCHA, les Politiques de Confidentialité et les Conditions d'Utilisation de Google s'appliquent.